Projekte
Architektur im Fokus
Erfolgreich realisierte Bauvorhaben im Überblick
Hier finden Sie eine Auswahl abgeschlossener Projekte (Vorgängerbüro schröderwenning architekten ), verantwortlicher Partner Entwurf und Planung Architekt Bernd Schröder
Senioren Wohngemeinschaften Kantstraße 12-14
An der Ecke „Kantstraße/Neuer Weg“ befindet sich ein rund 120 Jahre altes Backstein-Industriegebäude, das 1901 als Eisengießerei geplant war, später aber nur noch als Autowerkstatt und Lagerhalle genutzt wurde. Nach einer umfassenden Kernsanierung und Erweiterung sind hier zwei ambulant betreute Senioren-Wohngemeinschaften für jeweils zwölf Bewohner entstanden.
mehr erfahren
Die Bewohnerzimmer befinden sich im sanierten Klinkerbau, während die Gemeinschaftsräume im Erweiterungsbau untergebracht sind. Die Sanierung des Altbaus erfolgte nach dem Prinzip „Haus in Haus“ auf zwei Geschossen unter energetischen Gesichtspunkten und erreichte den KfW 40++ Standard. Das vorhandene Ziegelmauerwerk wurde erhalten, sichtbar belassen und durch Sandstrahlen und Neuverfugung wieder in seinen ursprünglichen Zustand versetzt.
Der Erweiterungsbau hebt sich durch eine vorgehängte Fassade in Holzoptik bewusst vom Altbau ab. Für das Satteldach kam eine grau beschichtete Aluminium-Doppelstehfalzdeckung zum Einsatz.
Um den energetischen Standard zu erreichen, wird das Gebäude über eine Fußbodenheizung mit Geothermie und Wärmepumpe beheizt und gekühlt. Dafür wurden rund 15 Tiefenbohrungen mit insgesamt etwa 1.700 Metern Länge eingebracht.
Das gesamte Gebäude, einschließlich der Bewohnerzimmer, ist barrierefrei nach DIN 18040-2 konzipiert. Großzügige Verglasungen und Freisitze ermöglichen allen 24 Bewohnerinnen und Bewohnern eine aktive Teilhabe am Quartiersleben. Der Erhalt des Industriecharakters und die Nähe zu Einrichtungen des täglichen Bedarfs sowie zu kulturellen Angeboten tragen zur Revitalisierung des Standorts und zur Aufwertung des benachbarten Bahnhofquartiers bei.
Sportzentrum Neuenhaus Grafschaft Bentheim
Unser Entwurf für das interkommunale Sportzentrum entstand im Rahmen eines europaweit ausgelobten ÖPP-Wettbewerbsverfahrens. Unter Führung der Büter-Bau GmbH als Generalübernehmer konnte sich unser gemeinsames Team erfolgreich gegen alle Mitbewerber durchsetzen.
mehr erfahren
Von der Konzeptentwicklung bis zur Ausführungsplanung verantworteten wir die architektonische Gestaltung des Projekts. Der Baukörper des neuen Sportzentrums setzt sich aus drei klar gegliederten Volumen zusammen: Die 3-Feld-Halle entlang der Schulstraße, die daran längsseitig angeschlossene 2-Feld-Halle mit Ausrichtung zum Sportplatz sowie ein verbindender Eingangsbereich.
Beide Hallenteile liegen mit ihren Spielfeldern etwa 3,25 m unter dem Geländeniveau, wodurch sich das Bauvolumen optisch deutlich reduziert. Diese Maßnahme trägt zur harmonischen Einbindung in den städtebaulichen Kontext bei.
Die Eingangsebene bildet einen großzügigen Zwischenbereich, der gleichzeitig Tribüne, Foyer und Begegnungsraum ist – mit Blickbeziehung zu beiden Hallenteilen. Die Idee eines gemeinsamen Sportzentrums wird hier architektonisch und funktional erlebbar.
Das Gebäudeensemble erhält durch diese Mitte seine innenräumliche Identität und öffnet sich gleichzeitig nach außen. Im Frühjahr 2022 wurde das Projekt fertiggestellt und an den Landkreis Grafschaft Bentheim sowie die Stadt Neuenhaus übergeben.
Bauherr: Landkreis Grafschaft Bentheim
GBS des Landkreises Grafschaft Bentheim
Die Gewerbliche Berufsbildende Schule des Landkreises Grafschaft Bentheim in Nordhorn wurde zwischen 1977 und 1987 errichtet. Aufgrund undichter Flachdächer und asbesthaltiger Fassaden wurde eine umfassende Sanierung notwendig.
mehr erfahren
Ein zentraler planerischer Aspekt war die vollständige Entwässerung der großflächigen Flachdächer nach außen. Die Sanierung von Dach und Fassade begann im Jahr 2014 unter Berücksichtigung nachhaltiger und energieeffizienter Bauprinzipien.
Ziel war es, die Funktionalität der Schule zu erhalten und gleichzeitig ein modernes, dauerhaftes Erscheinungsbild zu schaffen.
Service-Wohnen am Stephanus-Haus Lingen
Das Seniorenwohnheim „Stephanus-Haus“ bietet derzeit 114 pflegebedürftigen Bewohnern ein Zuhause. Mit dem separaten Neubau „Service-Wohnen“ sind zusätzlich 60 barrierefreie Wohnungen entstanden, die selbstbestimmtes Leben im Alter ermöglichen.
mehr erfahren
In enger Abstimmung mit dem Bauherrn haben wir vier Wohnungstypen entwickelt, die sich auf vier Gebäudeteile verteilen. Diese gruppieren sich räumlich spannungsvoll um drei große, begrünte und überdachte Atrien, die über drei Geschosse reichen und den Bewohnern zusätzliche Aufenthaltsqualität bieten.
Neben dem Wohnangebot umfasst der Neubau auch einen ambulanten Pflegedienst, eine Tagespflege sowie ein öffentlich zugängliches Bäckereicafé mit rund 60 Sitzplätzen.
Bauherr: sdn Service GmbH
SDN-Blanke Nordhorn
Die „Blanke“ ist seit den 1950er-Jahren der einwohnerstärkste Stadtteil Nordhorns. Mitten im Zentrum, an der Ecke Gildehauser Weg/Klarastraße, entstand auf einem städtebaulich wichtigen Grundstück ein neues Gebäude als Teil des Stadtumbaus.
mehr erfahren
Das Erdgeschoss des Gebäudes bietet Raum für die Büronutzung der sdn Soziale Dienste Nordhorn gGmbH sowie eine weitere Praxis. Darüber hinaus wurden im ersten und zweiten Obergeschoss jeweils zwölf Apartments für pflegebedürftige Menschen realisiert – organisiert in zwei ambulant betreuten Wohngemeinschaften.
Das Gebäude bringt unterschiedliche Nutzungen wie Arbeiten, Wohnen und Pflege unter einem Dach in einem funktionalen und architektonisch abgestimmten Konzept zusammen.
Großzügige Gemeinschaftsbereiche und Dachterrassen schaffen Orte der Begegnung und fördern das Miteinander innerhalb der Wohngemeinschaften.
Das Gebäude trägt damit nicht nur zur Verbesserung des Wohn- und Pflegeangebots im Stadtteil bei, sondern stärkt auch die soziale Infrastruktur im Zentrum der Blanke.
Erweiterung der „Vechtetal Schule“, Nordhorn
Die Vechtetal-Schule ist eine Förderschule mit dem Schwerpunkt Geistige Entwicklung. Aufgrund stark gestiegener Schülerzahlen wurde das 1992 geplante Schulgebäude um einen funktionalen Erweiterungsbau ergänzt.
mehr erfahren
Das neue Gebäude umfasst zehn zusätzliche Klassenräume, jeweils mit angeschlossenem Kleingruppenraum und integrierter Klassenraumküche. Ergänzt wird das Raumangebot durch eine zusätzliche Lehrküche, einen Therapieraum sowie drei Toiletten- und Nassraumblöcke.
Die großzügigen Flure sind als erweiterte Lern- und Erfahrungsräume konzipiert und unterstützen so den pädagogischen Alltag.
Ein besonderes Merkmal des Neubaus ist das fortschrittliche Brandschutzkonzept: Es sieht zwei Brandabschnitte vor, wodurch die sonst üblichen Rettungsflure ohne Brandlasten entfallen können.
Diese Lösung entspricht nicht nur den sicherheitstechnischen Anforderungen, sondern unterstützt auch das offene, förderorientierte Lernumfeld der Schule.
Grundschule Quendorf, Samtgemeinde Schüttorf
„Bewegen, Wohlfühlen, Lernen“ – unter diesem Motto steht die einzügige, ländlich gelegene Grundschule Quendorf. Der traditionsreiche Schulstandort blickt auf über 250 Jahre Geschichte zurück und ist fest im Bewusstsein der Samtgemeinde verankert.
mehr erfahren
Um den baulichen Anforderungen der Gegenwart gerecht zu werden, wurden wir 2016 mit einer Umgestaltung der Schulmitte beauftragt. Diese umfasste neue Räume für Verwaltung und Schulleitung, eine barrierefreie, rollstuhlgerechte Toilettenanlage sowie weitere Umbaumaßnahmen im Bestand.
Ziel war es, funktionale Verbesserungen mit dem Erhalt der gewachsenen Schulidentität zu verbinden.
Ab Herbst 2019 wurde ein von uns geplantes neues Mensa- und Mehrzweckgebäude errichtet. Es stärkt den Schulstandort in der Mitte der Gemeinde nachhaltig und erweitert das Raumangebot sinnvoll.
Neben der Nutzung als Mensa dient das neue Gebäude als Aula und Veranstaltungsraum – für die Schule und darüber hinaus für das Gemeindeleben.
Forum Gymnasium Emlichheim
Das Schulzentrum der Gemeinde Emlichheim ist ein Ensemble von Gebäuden aus unterschiedlichen Baujahren und Epochen. Das Forum ist die neue Mitte für das Gymnasium aus den 60iger Jahren.
mehr erfahren
Die unübersichtlichen Eingänge in die Schule wurden zusammengefasst und führen jetzt in das Forum; der zentrale Ort der Schule als Verteiler und Pausenaufenthalt, Cafeteria, Präsentations- und Ausstellungsort. Eine klare Formensprache, nachhaltige Materialien, gute Akustik und ein gutes energetisches Konzept zeichnen das neue Forum aus.
Bauherr: Büter-Bau GmbH
Neubebauung am „Kaiserhof“ Bad Bentheim
Das „Wohn- und Geschäftshaus mit 3 Gruppen Kita (DRK) und Wohnhaus mit 12 Wohneinheiten“ neben dem ehemaligen Hotel „Kaiserhof“ liegt im Sanierungsgebiet „Bahnhofsumfeld“ der Stadt Bad Bentheim. Als wichtiger Stadtbaustein am Stadteingang fällt dem Bauvorhaben zusammen mit der Sanierung des ehemaligen Hotels dabei eine besondere Rolle für Bad Bentheim zu.
mehr erfahren
Das Projekt vereint dabei seine unterschiedlichen Nutzungen auf dem Grundstück so, dass sie städtebaulich und in der Baukörperausgestaltung als „Ganzes“ und als Ensemble wahrgenommen werden. Der neue Hauptbaukörper nimmt sich in seiner Bauflucht an der Bahnhofstraße zum alten „Kaiserhof“ respektvoll zurück. Das Bauunternehmen Büter-Bau erstellte als Bauherr, Investor und Generalunternehmer die von uns entworfene und geplante Architektur. 19 attraktive Wohnungen, 3 großzügige Praxen und die Kita bilden heute das Neubauensemble.
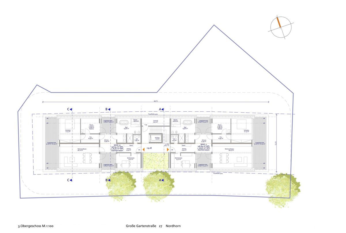
Neubau eines Wohn- und Bürohauses in Nordhorn
Am Frensdorfer Ring in Nordhorn entstand ein Wohn- und Bürohaus mit 11 Wohnungen und neuen Räumlichkeiten für den Pflegedienst der Sozialen Dienste Nordhorn, das über die Große Gartenstraße erschlossen wird. Neben 4 Büroräumen im Erdgeschoss wurde im 1. Obergeschoss ein großer Aufenthaltsraum für Mitarbeiter des sdn realisiert.
mehr erfahren
Die 9 Wohnungen des I. und II. Obergeschosses variieren in ihrer Größe von 50–125 m² Wohnfläche und werden über einen auf der Nordseite angeordneten Laubengang erschlossen. Großzügige Belichtungsöffnungen, Loggien oder teilweise überdachte Balkone schaffen eine gute innen/außen Beziehung des Wohnungsmixes. Die beiden geräumigen, je ca. 170 m² großen Wohnungen im Dachgeschoss bieten mit ihren Loggiaterrassen und großzügigen Freisitzen an den raumhoch verglasten Giebeln ein exklusives Wohnerlebnis. Der klare, kubische Baukörper fügt sich mit dem Satteldach gut in die umliegende Bebauung ein und wird durch sein modernes Erscheinungsbild gleichzeitig zum neuen Blickfang am Frensdorfer Ring.
Bauherr: DRK Kreisverband Grafschaft Bentheim
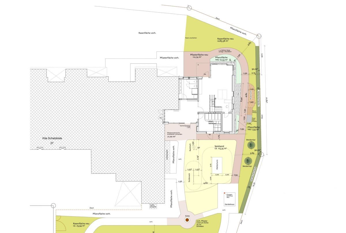
Umbau und Erweiterung DRK- Kita „Schatzkiste“
Die Kita unter Trägerschaft des DRK Grafschaft Bentheim wurde in den 1990er-Jahren als viergruppiger Kindergarten errichtet. Ein neues „Krippenhaus“ wurde 2010 an der Nordostseite ergänzt, doch durch den Ganztagsbetrieb fehlten weiterhin ein Speiseraum mit offener Küche sowie ein zusätzlicher Intensivraum.
mehr erfahren
Die im Sommer 2019 abgeschlossene Maßnahme umfasste den Neubau eines Gruppenhauses im Südwesten des Grundstücks, um im Zentrum des bestehenden Gebäudes neue Raumfunktionen zu ermöglichen. In Anlehnung an die kubische Architektursprache des Krippenhauses von 2010 wurde auch der neue Baukörper kontrastierend zum ursprünglichen Gebäude mit seinen offenen Holz-Pultdächern mit Ziegeldeckung gestaltet. Der neue Anbau korrespondiert in Materialwahl und Maßstäblichkeit so gut mit dem Bestand, dass das Ensemble heute als überzeugende Einheit wahrgenommen wird.
Umbau und Erweiterung Kita „Rüskauer Rasselbande“
Die Kita unter Trägerschaft der Stadt Schüttorf wurde ursprünglich im Jahr 1970 als viergruppiger Kindergarten errichtet. Ein Krippentrakt kam 2009 hinzu, doch das Bestandsgebäude entsprach 2017 nicht mehr den Anforderungen an eine zeitgemäße Kindertagesstätte.
mehr erfahren
Unsere Aufgabe war es, den Gebäudeteil zur Straßenseite hin so zu erweitern und umzubauen, dass ein großzügiger Essbereich mit offener Küche, ein Hauswirtschaftsbereich und ein erweiterter Kreativraum entstehen. Auf der Gartenseite wurden für alle vier Gruppen neue Kinderbäder geschaffen, die Garderobenbereiche aufgeweitet und die Ausgänge zum Garten neu gestaltet. Nach Abschluss der Baumaßnahme sind alle gestalterischen und funktionalen Ziele erreicht worden. Die Erweiterungen in Holzrahmenbauweise fügen sich eigenständig, aber respektvoll an die Ursprungsarchitektur an.
Krippenanbau Kita Wietkamp Strolche, Schüttorf
Der integrative Kindergarten wurde im Jahr 2000 von JHW Architekten für vier Gruppen neu errichtet. Die räumliche Organisation folgt einem klaren, nach außen gerichteten Rhythmus mit einem zentralen Flur, der als „Spielstraße“ genutzt wird und in den die Balkone der Gruppenräume hineinragen.
mehr erfahren
Im Jahr 2013 wurde die Einrichtung von uns um eine Krippengruppe erweitert – mit dem Ziel, die Kleinsten aktiv in den Tagesablauf der gesamten Kita einzubinden. Auch die neue Krippe wird daher über die bestehende Spielstraße erschlossen. Der neue Gruppenraum ist durch eine besondere Spiellandschaft geprägt, bei der zwei vorspringende Spiel- und Ausguckboxen Architektur und Innenausstattung kindgerecht miteinander verbinden.
Erweiterung KITA in Neugnadenfeld, Grafschaft Bentheim
Im Ortsteil Neugnadenfeld der Gemeinde Ringe wurde die bestehende Kita um eine zusätzliche Krippengruppe sowie neue Intensiv- und Personalräume erweitert.
mehr erfahren
Ein großzügiger neuer Essraum mit überarbeiteter Küche entstand im Bestand. Die entwickelte Lösung fügt sich dörflich-harmonisch in das Ortsbild ein und ergänzt den vorhandenen Baukörper kompakt und funktional schlüssig. Die neue Struktur stärkt die Nutzung und den Charakter der bestehenden Einrichtung.
3 Generationen Haus
Das kompakte Haus in massiver, dreigeschossiger Bauweise steht in direkter Nachbarschaft des „Annaheim Seniorenzentrums“ und wurde als barrierefreies Gebäude für Wohnen und Arbeiten über drei Generationen konzipiert.
mehr erfahren
Die Kubatur des Hauses staffelt sich nach Süden und ermöglicht individuelle Raumfolgen mit reizvollen Außenbezügen zur parkähnlichen Landschaft des Ortes. Ein Wechselspiel aus grauen Verblendern im Langformat, raumhohen Glasflächen und Holzlamellen gliedert die Fassade. Das Projekt wurde von der Fachjury der Architektenkammer Niedersachsen zur Teilnahme am Tag der Architektur 2014 ausgewählt.
Erweiterung sdn Pflegeheim Haus Hilten
Das „Haus Hilten“ in Neuenhaus ist eine Einrichtung für 76 Bewohnerinnen und Bewohner, die sich auf sechs Hausgemeinschaften verteilen. Der ursprüngliche Bau für 48 Personen wurde 2008 nach dem Modell der „KDA-Hausgemeinschaften“ in enger Abstimmung mit dem Bauherrn SDN durch JHW Architekten realisiert.
mehr erfahren
Im Jahr 2016 erfolgte die Erweiterung um zwei weitere Hausgemeinschaften für 28 zusätzliche Bewohnerinnen und Bewohner, geplant und umgesetzt durch unser Büro. Zusätzlich wurden ein Speise-, Andachts- und Veranstaltungsraum mit angelagertem Küchenbereich im Erweiterungsbau geschaffen. Die Außenanlagen wurden ebenfalls erweitert und sensibel in die bestehende Gesamtstruktur eingebunden.
Betreutes Wohnen am Markt, Emlichheim
Die Anlage für Betreutes Wohnen im Zentrum von Emlichheim wurde durch einen Komplex aus fünf miteinander verbundenen Häusern erweitert. Der Entwurf folgt der städtebaulichen Vorgabe, den Blick von der Kreuzung Wilsumer Straße / Am Markt auf die evangelisch-reformierte Kirche freizuhalten.
mehr erfahren
So entstanden fünf additiv aneinandergereihte Häuser, die jeweils über ein Gelenk miteinander verbunden sind. Durch die Erweiterung vergrößert sich das Angebot des DRK am Standort um 32 barrierefreie Wohnungen mit Gemeinschaftsbereich. Im Erdgeschoss an der Wilsumer Straße sind zusätzlich Räume für eine Tagespflege mit Gartenhof untergebracht. In ihrer architektonischen Ausgestaltung nehmen die neuen Gebäude die Maßstäblichkeit und Sprache der Umgebung auf: roter Klinker, abgesetzte Dachgeschosse mit Holzlamellen und weiß verputzte Verbindungsbereiche fügen das Ensemble harmonisch in das Ortsbild ein.
Sporthalle des Burg -Gymnasiums, Bad Bentheim
Die neue 2-Feld-Sporthalle wurde 2014 im Rahmen eines ÖPP-Verfahrens von uns geplant und durch die Firma Büter-Bau aus Ringe als Investor für den Landkreis Grafschaft Bentheim schlüsselfertig errichtet.
mehr erfahren
Das Projekt steht beispielhaft für nachhaltiges Bauen mit dem Anspruch, hohe Qualität und Kosteneffizienz zu vereinen. Die freistehende Halle wurde hinter der Aula des Gymnasiums positioniert und gliedert sich klar in Haupthalle und dienende Funktionsräume. Gestalterisch wird das Gebäude geprägt von einem umlaufenden, robusten Klinkersockel, der das Fundament für die transluzente Außenhaut des hohen Hallenteils bildet. Besonders in den Abendstunden entsteht durch das nach außen strahlende Licht eine atmosphärisch dichte Wirkung im Umfeld der Halle.
Anbau Zahnarztpraxis, Schüttorf
Ein seit 1979 als Zahnarztpraxis genutztes Wohnhaus aus den 1930er-Jahren benötigte eine funktionale und bauliche Überarbeitung. Unsere Aufgabe war es, dem Bestand mit typischen Elementen des norddeutschen Klinkerexpressionismus einen modernen Anbau respektvoll und zugleich selbstbewusst zur Seite zu stellen.
mehr erfahren
Ein Gebäudeteil aus den 1970er-Jahren wurde entfernt, um Platz für neue Praxisräume zu schaffen. Die großflächige Straßenfassade reagiert intelligent auf die Anforderungen des Bauherrn: Schaltbares elektrochromes Glas ermöglicht eine flexible Transparenz, effektives Sonnenschutzglas und Glaspaneele ergänzen die Ausfachungen der Holz-Alu-Pfosten-Riegelkonstruktion. Der Anbau wurde in Holzrahmenbauweise errichtet, um das laut Bebauungsplan vorgegebene Baufenster mit schlanken Wandaufbauten optimal auszunutzen.
Neues Wohnen in Schüttorfs Altstadt
Die kleine Wohnanlage mit acht Wohneinheiten von 40 bis 120 m² liegt im Sanierungsgebiet des Stadtkerns von Schüttorf. Das Grundstück erstreckt sich zwischen zwei Altstadtstraßen und ist städtebaulich harmonisch in die gewachsene Struktur eingebunden.
mehr erfahren
Drei klare Satteldachhäuser reihen sich entlang der Straßenzüge und werden im Blockinneren durch flache Baukörper mit Dachterrassen verbunden. Ein Laubengangweg – wie eine kleine historische Stichgasse – erschließt die Wohnungen von Straße zu Straße. Neben großzügigen Dachterrassen bieten drei geschützte kleine Grünhöfe wohnliche Aufenthaltsqualität im Freien. Das Projekt wurde von der Fachjury der Architektenkammer Niedersachsen zur Teilnahme am Tag der Architektur 2018 ausgewählt.
Mehrfamilienhaus in Gildehaus
Das Mehrfamilienhaus am Gerstenkamp in Gildehaus überzeugt durch die ökonomische Ausnutzung des Eckgrundstücks. Der großzügige, überdachte Eingangsbereich führt in das barrierefreie Treppenhaus mit Aufzug.
mehr erfahren
Alle sieben Wohnungen sind barrierefrei gestaltet und verfügen im Erdgeschoss über Terrassen sowie im Obergeschoss über Balkone. Große Fensterelemente in den Giebeln schaffen ein offenes, lichtdurchflutetes Raumgefühl. Das Gebäude fügt sich in Typologie und Gestaltung selbstverständlich und harmonisch in den städtebaulichen Kontext ein.



















































































































































